002 | Umbau und Sarnierung Einfamilienhaus | Riehen

Das in den 1950er-Jahren errichtete Reiheneinfamilienhaus ist Teil einer typischen Siedlungsstruktur in Riehen, einer Vorortsgemeinde von Basel.

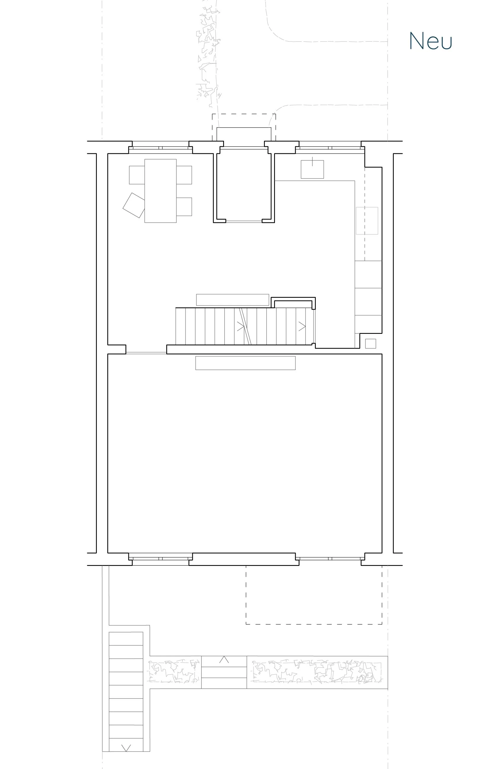
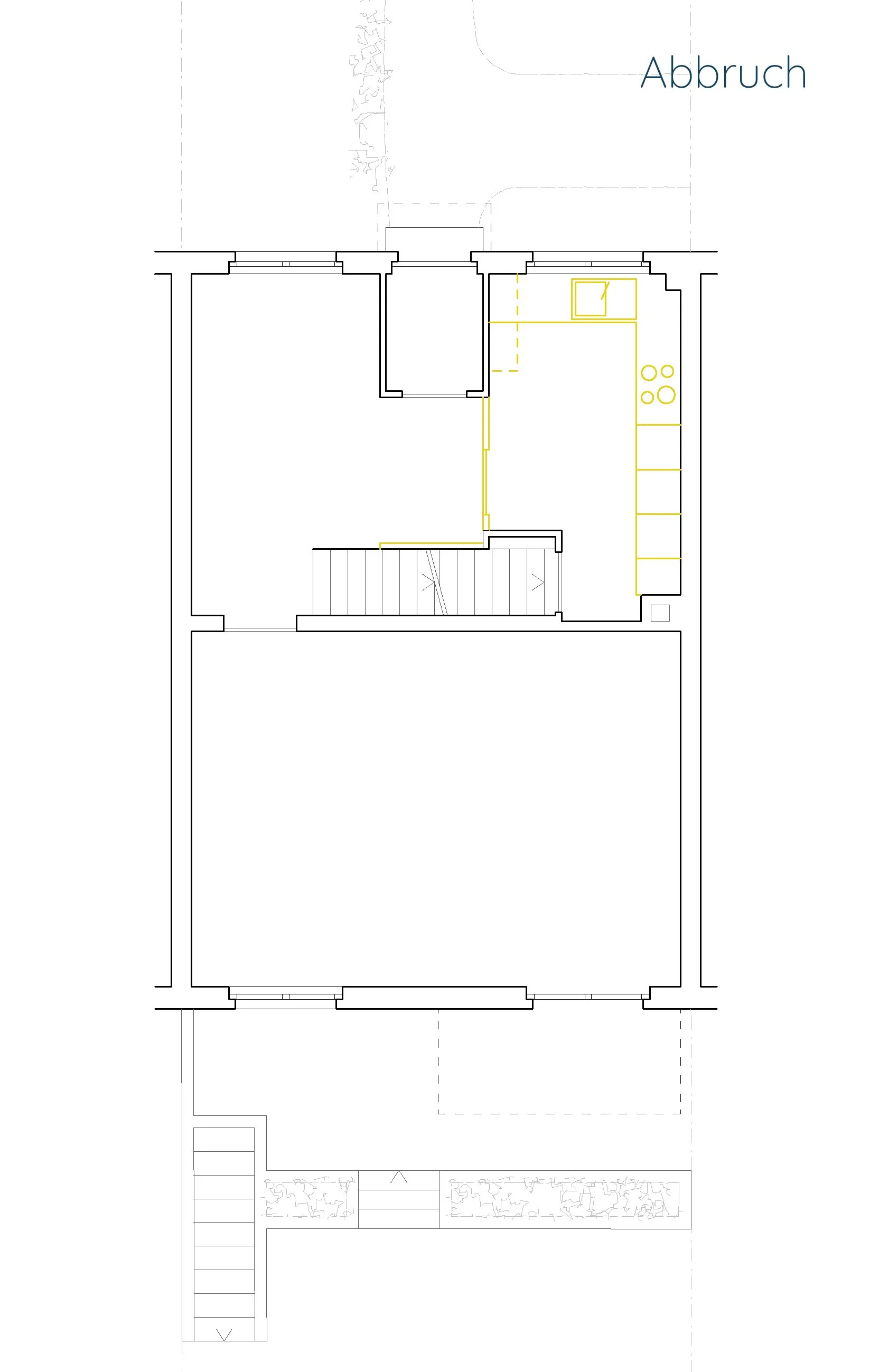
Durch einen gezielten Eingriff in die bestehende Raumstruktur des Erdgeschosses konnten die vorhandenen Volumen klarer gegliedert und funktional miteinander verbunden werden. Die räumliche Neuorganisation schafft Offenheit und entspricht den heutigen Wohnanforderungen.

Im Obergeschoss wurde das Badezimmer hinsichtlich Bedienbarkeit und Nutzungskomfort dezent optimiert.

Die Eingriffe verstehen sich als zurückhaltende, aber präzise gesetzte Massnahmen, die den Bestand respektieren und zugleich die Wohnqualität nachhaltig steigern.

Ort, Riehen | BS
Typologie, Reiheneinfamilienhaus
Jahr, 2025
Auftraggeber, Privat
Leistungen, Planung und Ausführung
Bild 1 Bild 2
Moderne Küche mit weißen Schränken, Holzboden und einem Treppenhaus.
Ein modernes Badezimmer mit einer weißen Toilette, einer Waschtisch mit Holzfront, einem runden Spiegel und einer Dusche mit Handbrause, beleuchtet durch Tageslicht durch ein Fenster.
Bild 1 Bild 2